- 2
- 2
- 2
- 121 m2
Description
Résidence “A GIERENS” – CONSDORF
L’agence immobilière MaraMax s.à r.l. a le plaisir de vous proposer en vente un magnifique projet immobilier situé à Consdorf, dans une résidence très exclusive et de haut standing en future construction, composée de seulement 3 lots !
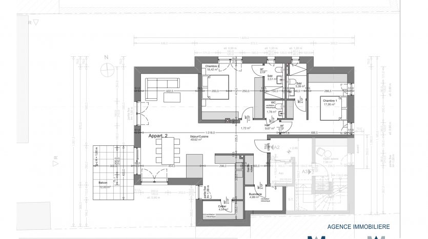
Nous vous présentons ici le Lot N°2, un magnifique appartement situé au 1er étage, offrant une surface cadastrale de +/- 121,73 m², se composant comme suit :
Composition du bien :
Hall d’entrée,
Séjour / salle à manger avec cuisine ouverte de +/- 45,20 m² avec accès direct sur un balcon
de +/- 12,00 m²,
Chambre à coucher n°1 de +/- 16,06 m²,
Chambre à coucher n°2 de +/- 17,37 m² avec salle de douche privative de +/- 3,39 m²,
Hall de nuit de +/- 9,54 m²,
Salle de douche de +/- 2,85 m²,
WC séparé avec buanderie de +/- 6,04 m²,
Cellier de+/- 4,04 m²,
Annexes privatives incluses dans le prix :
Deux emplacements carport,
Jardin privatif de +/- 92,97 m².
Prestations techniques et confort :
Cette future construction de qualité sera réalisée selon les normes de performance énergétique A – A, et dotée d’équipements modernes : Chaudière à gaz à condensation,
Chauffage au sol,
Portes-fenêtres et fenêtres PVC avec coupure thermique et triple vitrage,
Volets roulants / stores motorisés,
Système de ventilation double flux (VMC),
Délai de livraison estimé : +/- 24 mois
Situation idéale :
Arrêt de bus à 30 mètres,
Commodités à proximité (commerces, services, écoles, etc.),
À 7 km d’Echternach, 11 km de Junglinster, 13 km de Grevenmacher, 16 km de Diekirch et 24 km de Luxembourg-Ville.
Informations complémentaires :
Prix affichés TTC avec TVA à 3%, sous réserve d’acceptation du taux super réduit (demande à effectuer par le promoteur après l’enregistrement de l’acte notarié).
Possibilité d’aménagements personnalisés (modifications de plans et finitions sur demande, sous réserve d’accord du promoteur – coûts à la charge de l’acquéreur).
Autres lots disponibles dans la résidence :
Lot N°1 – Appartement en rez-de-jardin, 3 chambres
Lot N°3 – Appartement en duplex (1er & 2ᵉ étage), 2 chambres
Pour tout renseignement complémentaire ou pour recevoir les plans, cahier des charges et documents techniques, n’hésitez pas à nous contacter : +352 23 65 06 89 / info@maramax.lu
Nous serons ravis de vous faire découvrir ce projet immobilier d’exception à Consdorf !



















